1. ホーム
  2. 物件検索
  3. 物件詳細

中古一戸建て秦野市戸川

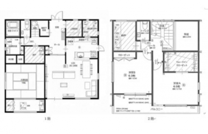
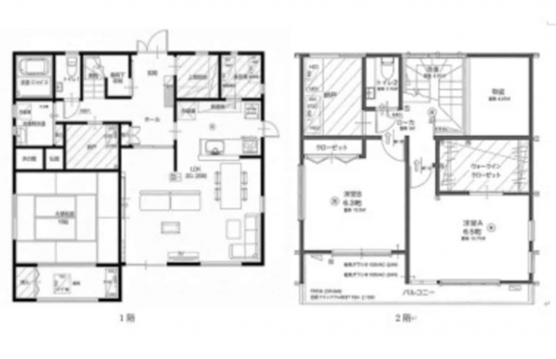
【間取り】

1,590万円

◆築浅戸建! 東名インターすぐ! 住環境◎
 ・閑静な住宅街・眺望
◆現在賃貸中のオーナーチェンジ物件

物件概要

所在地
秦野市戸川
価格
1,590 万円
交通

小田急線 渋沢駅 まで 徒歩29分

接道状況
南西側 公道6.5m 間口約18m
土地面積
公簿 385.66㎡ (116.66坪)
建物面積
133.72㎡ (40.45坪)
間取り
3SLDK
築年数
2017年 (平成29) 9月
築8年
建ぺい率
50%
容積率
80%
土地権利
所有権
構造および階数
木造 地上2階建
小学校区
北 (1400m)
中学校区
北 (1000m)
私道負担
地目
宅地
現況
賃貸中
引渡時期
相談
駐車場
10台
上水道
公共
下水道
ガス
都市計画
調整区域
用途地域
設備・条件
システムキッチン、カウンターキッチン、食器洗浄乾燥機、オール電化、シャンプードレッサー、洗浄便座、浴室乾燥機、追い焚き、ウォークインクローゼット、モニタ付インターホン、駐車場3台分
備考
取引態様
仲介
周辺地図を確認する

(弊社管理番号: 3002488)

【更新日】2026年02月15日

【次回更新日】2026年03月15日

その他周辺物件

この物件は153人の
方が興味を持っています

HPを見たと言って、お気軽にお問い合わせください!

050-3154-1023

〒257-0045 神奈川県秦野市桜町2丁目1−45

営業時間:9:00〜18:00 定休日:祝日(ご予約で対応可能)

SNSをフォロー