中古一戸建て秦野市南矢名292-1
ライフインフォメーション
■エネオス東海大学前SS 407m
■セブンイレブン秦野南矢名南店 393m
■ニューヤマザキデイリーストア秦野南矢名店 270m
■秦野東海大学前郵便局 295m
■私立東海大学湘南キャンパス 740m
物件概要
- 所在地
- 秦野市南矢名292-1
- 価格
- 3,160 万円
- 交通
-
小田急線 東海大学前駅 まで 徒歩17分
小田急線 鶴巻温泉駅 まで 徒歩29分
- 接道状況
- 西側 公道4m 間口約24m
- 土地面積
- 公簿 409.81㎡ (123.96坪)
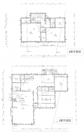
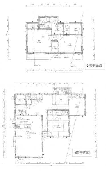
- 建物面積
- 131.66㎡ (39.82坪)
- 間取り
- 4LDK
- 築年数
-
2010年
(平成22)
11月
築15年 - 建ぺい率
- 50%
- 容積率
- 100%
- 土地権利
- 所有権
- 構造および階数
- 木造 地上2階建
- 小学校区
- 大根
- 中学校区
- 大根
- 私道負担
- 地目
- 宅地
- 現況
- 空
- 引渡時期
- 予定 2026年4月 下旬
- 駐車場
- 有 3台
- 上水道
- 公共
- 下水道
- 公共
- ガス
- プロパン個別
- 都市計画
- 市街化区域
- 用途地域
- 1種低層
- 設備・条件
- カウンターキッチン、IHクッキングヒーター、洗浄便座、追い焚き、ルーフバルコニー、駐車場3台分、トイレ2箇所、エアコン,照明器具付き,複層ガラス
- 備考
- 取引態様
- 仲介
その他周辺物件
-
PRICE DOWN中古一戸建て秦野市南矢名5-19-7
写真充実 間取り有更新日:2026.04.17
-
中古一戸建て秦野市南矢名2丁目
写真充実 間取り有 駅徒歩10分以内 50坪以上 上下水道完備 オール電化 オール電化住宅更新日:2026.02.10
-
中古一戸建て秦野市✽✽✽✽
写真充実 間取り有 上下水道完備更新日:2026.03.17
-
中古一戸建て秦野市✽✽✽✽
写真充実 間取り有 築10年以内 駅徒歩10分以内 上下水道完備 オール電化 オール電化住宅更新日:2026.03.31
-
新築一戸建て秦野市南矢名502-2付近6号棟
写真充実 間取り有 築10年以内 駐車場2台可 4LDK以上 上下水道完備 オール電化 オール電化住宅更新日:2026.04.20
この物件は74人の
方が興味を持っています