新築一戸建て秦野市堀山下桃木原511番、511番2 / 510付近(カーナビ)2号棟
・花粉もウイルスも家に入れない上着も収まるシューズクローゼット付き
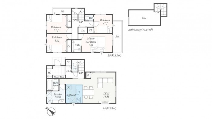
・固定階段で安全に使える屋根裏収納付き
「住宅性能表評価」4部門で最高等級獲得!
・耐震最高等級3
・劣化対策最高等級3
・維持管理対策最高等級3
・一次省エネルギー消費量最高等級6
・断熱性能等級5(ZEH基準)
物件概要
- 所在地
- 秦野市堀山下桃木原511番、511番2 / 510付近(カーナビ)2号棟
- 価格
- 3,380 万円
- 交通
-
小田急線 渋沢駅 バス5分乗車 バス停関 まで 徒歩10分
- 接道状況
- 北東側 公道10.6m
- 土地面積
- 114.26㎡ (34.56坪)
- 建物面積
- 106.81㎡ (32.31坪)
- 間取り
- 4LDK
- 築年数
- 2026年 (令和8) 8月 完成予定
- 建ぺい率
- 60%
- 容積率
- 200%
- 土地権利
- 構造および階数
- 木造 地上2階建
- 小学校区
- 西 (1200m)
- 中学校区
- 西 (1500m)
- 私道負担
- 地目
- 宅地
- 現況
- 建築中
- 引渡時期
- 相談
- 駐車場
- 有 2台
- 上水道
- 公共
- 下水道
- 公共
- ガス
- 都市ガス
- 都市計画
- 市街化区域
- 用途地域
- 1種中高
- 設備・条件
- 食器洗浄乾燥機、洗浄便座、浴室乾燥機、モニタ付インターホン、駐車場2台分、トイレ2箇所、パントリー、カップボード、リビングイン階段、宅配BOX付昨日門柱、電気施錠スマートコントロールキー
- 備考
- 取引態様
- 仲介
その他周辺物件
-
新築一戸建て秦野市堀山下桃木原511番、511番2 / 510付近(カーナビ)4号棟
写真充実 間取り有 築10年以内 駐車場2台可 4LDK以上 上下水道完備更新日:2026.03.26
-
新築一戸建て秦野市堀山下桃木原511番、511番2 / 510付近(カーナビ)3号棟
写真充実 間取り有 築10年以内 駐車場2台可 4LDK以上 上下水道完備更新日:2026.03.26
-
新築一戸建て秦野市堀山下桃木原511番、511番2 / 510付近(カーナビ)1号棟
写真充実 間取り有 築10年以内 駐車場2台可 4LDK以上 上下水道完備更新日:2026.03.26
-
新築一戸建て秦野市✽✽✽✽
写真充実 間取り有 築10年以内 駐車場2台可 4LDK以上更新日:2026.01.16
-
新築一戸建て秦野市✽✽✽✽
写真充実 間取り有 築10年以内 駐車場2台可 4LDK以上更新日:2026.01.16
この物件は80人の
方が興味を持っています